Espace propriétaire
fr
Se connecter
Se connecter

Votre recherche

Exclusivité
Laguépie (82250)

3 pièces - 97,60 m²

Maison à rénover

60 000 €
Ref : VM298
A propos de ce bien

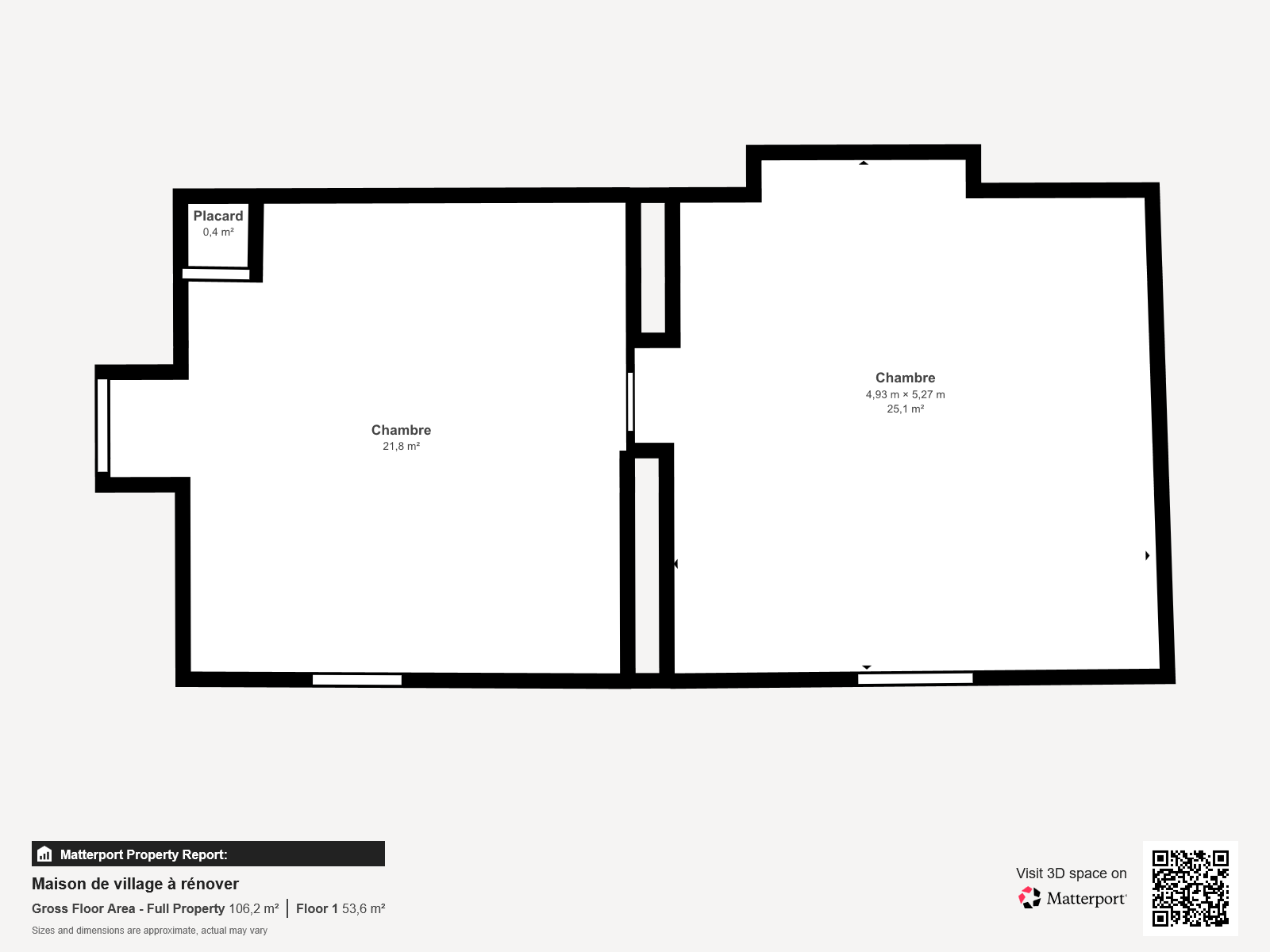
À vendre à Laguépie, charmant village situé à 35 km d’Albi et 15 km de Cordes-sur-Ciel, découvrez cette maison de caractère d’environ 97 m², construite dans les années 1880. Élevée sur deux niveaux, elle offre deux plateaux d’environ 50 m² chacun, à rénover entièrement selon vos envies et vos projets.

L’intérieur se compose actuellement d’une pièce à vivre en rez-de-chaussée ainsi que de deux pièces en rez-de-jardin. Son agencement modulable laisse entrevoir de nombreuses possibilités : maison principale, résidence secondaire ou création d’appartements locatifs dans un secteur à fort attrait touristique.

Un jardin de 292 m² vient compléter l’ensemble, offrant un agréable espace extérieur pour profiter du calme et du cadre verdoyant du village.

La maison bénéficie d’une localisation proche des commodités : école primaire et crèche à proximité, gare de Laguépie à moins de 10 minutes à pied, ainsi que plusieurs commerces, restaurants, boulangerie, bureau de poste, supérette et boucherie accessibles à pied.

Ce bien séduira les amateurs de rénovation et les porteurs de projets souhaitant valoriser une bâtisse authentique.

Contactez dès maintenant l’équipe Obsitas Immobilier pour plus d’informations ou pour organiser une visite.


Les informations sur les risques auxquels ce bien est exposé sont disponibles sur le site Géorisques
Descriptif de ce bien
Général
Code postal 82250
surface terrain 359 m²
Nombre de chambre(s) 2
Nombre de pièces 3
Nombre de niveaux 2
Détails
Nb de salle de bains 1
Type de cuisine SANS
Mode de chauffage Autre
Type de chauffage Autre
Format de chauffage AUTRE
Nombre de parking 1
Année de construction 1880
Composition
Rez de chaussée
ch2 25.1 m²

ch1 22.5 m²

salon/cuisine 50 m²

Financier
Prix de vente 60 000 €
Les honoraires d'agence seront intégralement à la charge du vendeur  
Taxe foncière annuelle 292 €
Energie
DPE GES
Autour du bien
  • Commerces et santé
  • Loisirs
  • Ecoles
  • Transports
  • Pratique
Contacter pour ce bien
L'agence
Téléphone 09 78 81 31 10
Adresse
3 rue des écoles 81150 Marssac-sur-Tarn

* Champ obligatoire

Les informations recueillies sur ce formulaire sont enregistrées dans un fichier informatisé par La Boite Immo agissant comme Sous-traitant du traitement pour la gestion de la clientèle/prospects de l'Agence / du Réseau qui reste Responsable du Traitement de vos Données personnelles. La base légale du traitement repose sur l'intérêt légitime de l'Agence / du Réseau. Elles sont conservées jusqu'à demande de suppression et sont destinées à l'Agence / au Réseau. Conformément à la loi « informatique et libertés », vous disposez des droits d’accès, de rectification, d’effacement, d’opposition, de limitation et de portabilité de vos données. Vous pouvez retirer votre consentement à tout moment en contactant directement l’Agence / Le Réseau. Consultez le site https://cnil.fr/fr pour plus d’informations sur vos droits. Si vous estimez, après avoir contacté l'Agence / le Réseau, que vos droits « Informatique et Libertés » ne sont pas respectés, vous pouvez adresser une réclamation à la CNIL. Nous vous informons de l’existence de la liste d'opposition au démarchage téléphonique « Bloctel », sur laquelle vous pouvez vous inscrire ici : https://www.bloctel.gouv.fr Dans le cadre de la protection des Données personnelles, nous vous invitons à ne pas inscrire de Données sensibles dans le champ de saisie libre.
Ce site est protégé par reCAPTCHA, les Politiques de Confidentialité et les Conditions d'Utilisation de Google s'appliquent.

Découvrir nos outils